prime residential building plot in stunning countryside location
Land Adjacent To 121 Goodshaw Lane, Crawshawbooth, Lancashire
For Sale £200,000
in Rossendale
0.25 Acres
- Planning in Principle for the construction of a detached dwelling with a large garden and off road parking.
- Stunning views over the surrounding countryside.
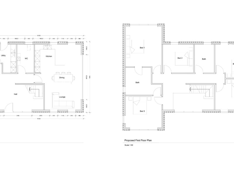
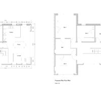
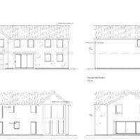
- Indicative designs proposed for a detached, two storey 5 bedroom dwelling.
- Conveniently located close to all local amenities.
- Rare development opportunity.
Description
An undulating building plot located to the north east of Goodshaw Lane. The plot extends to approximately 0.25 acres (0.1 hectares) and provides a superb residential development opportunity with outstanding views of the surrounding countryside. Planning In Principle was granted on the 20th June 2023 for the construction of a single detached two storey dwelling. An indicative design has been prepared illustrating a detached five bedroom dwelling with an integral garage, off road parking and a large garden. The purchaser may however adapt the design and configuration to their own requirement subject to obtaining planning consent. Video Link: https://vimeo.com/974224535Location
The plot is situated to the north east of Goodshaw Lane adjacent to 121 Goodshaw Lane, a short drive from Burnley Road (A682), the main arterial route through the popular village of Crawshawbooth. This stunning location borders open countryside, providing superb Valley views overlooking Crawshawbooth and Rawtenstall.Accommodation
Access can be made available for parties requiring further site investigation subject to prior confirmation and appointment. We will require indemnification in respect of any third party claims arising from an inspection being undertaken.Services
We understand that all mains services are available within the near vicinity.Viewing
Old Red Lion,
4 Manchester Road,
Burnley BB11 1HH.
Tel: 01282 456677
Email: [email protected]
Featured Commercial Properties
Take a look at our featured commercial properties for sale or rent in the Lancashire, including buildings, development property, warehouses, offices, and retail units all in prime locations.
substantial workshop and warehouse facility with modern offices and income producing separate workshops.
For Sale £1,400,000
Industrial Warehouse in Trawden | 24381 Sq Ft
substantial office premises in prime town centre location.
For Sale £335,000
Development in Burnley | 3951 Sq Ft
portal frame warehouse located on popular business park
To Let £925 Per Month
Industrial Warehouse in Nelson | 1129 Sq Ft
modern light industrial unit with good quality office facilities.
To Let £995 Per Month
Industrial Warehouse in Burnley | 2050.17 Sq Ft
high bay warehouse on well established industrial estate
To Let £45,000 Per Annum
Industrial Light in Nelson | 8337 Sq Ft
workshop unit in town centre location
For Sale £45,000 Auction
Industrial Light in Colne | 1113 Sq Ft
extensively refurbished clinic suitable for a variety of uses
For Sale £375,000 Offers in the region of
Leisure in Burnley | 3265 Sq Ft
prominent restaurant premises in popular village location
For Sale £225,000 Auction
Investment in Rossendale | 2278.84 Sq Ft
Sign up for property alerts















