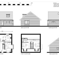
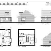
residential building plot with planning permission for detached 3 bed dormer bungalow.
Land Adjoining Pierce Close, Pierce Close, Padiham, Burnley, Lancashire
For Sale £75,000
in Padiham
0.08 Acres
- Planning permission recently granted for 3 bed detached dormer bungalow with garden and off road parking.
- Popular residential location adjacent to the newly developed Maple Close estate.
- Located close to Padiham town centre and its amenities.
- Corner plot in elevated position.
Description
An elevated residential building plot located at the entrance of Pierce Close. Planning permission was granted in June 2023 (Reference No. FUL/2022/0541) for the erection of a spacious, detached 3 bedroom dormer bungalow with a garden and driveway, providing parking for 2 vehicles.
Internally, the accommodation is to comprise on the ground floor, a living room, kitchen / dining room, master bedroom with en-suite and a WC. The first floor will comprise a further 2 bedroom and bathroom.
The plot adjoins a mix of detached and semi detached dwellings.
Location
The site is situated just off West Street at the corner of Pierce Close, adjacent to Maple Close, a modern residential development comprising a mix of detached and semi detached dwellings.
Conveniently located within 5 minutes drive from Padiham town centre, the site is close to local amenities including Tesco, Lidl, Padiham Leisure Centre and various popular schools.
Accommodation
Access can be made available for parties requiring further site investigation subject to prior confirmation and appointment.
We will require indemnification in respect of any third party claims arising from an inspection being undertaken.
Services
We are advised that all mains services are available within the near vicinity.
Viewing
Old Red Lion,
4 Manchester Road,
Burnley BB11 1HH.
Tel: 01282 456677
Email: [email protected]
Featured Commercial Properties
Take a look at our featured commercial properties for sale or rent in the Lancashire, including buildings, development property, warehouses, offices, and retail units all in prime locations.
substantial workshop and warehouse facility with modern offices and income producing separate workshops.
For Sale £1,400,000
Industrial Warehouse in Trawden | 24381 Sq Ft
substantial office premises in prime town centre location.
For Sale £335,000
Development in Burnley | 3951 Sq Ft
portal frame warehouse located on popular business park
To Let £925 Per Month
Industrial Warehouse in Nelson | 1129 Sq Ft
modern light industrial unit with good quality office facilities.
To Let £995 Per Month
Industrial Warehouse in Burnley | 2050.17 Sq Ft
high bay warehouse on well established industrial estate
To Let £45,000 Per Annum
Industrial Light in Nelson | 8337 Sq Ft
workshop unit in town centre location
For Sale £45,000 Auction
Industrial Light in Colne | 1113 Sq Ft
extensively refurbished clinic suitable for a variety of uses
For Sale £375,000 Offers in the region of
Leisure in Burnley | 3265 Sq Ft
prominent restaurant premises in popular village location
For Sale £225,000 Auction
Investment in Rossendale | 2278.84 Sq Ft
Sign up for property alerts










